О товаре:
- Длинна: 2000 мм.
- Ширина: 370 мм.
- Высота: 210 мм.
- Вес: 150 кг.
- ГОСТ, Серия: ТП 501-166 скачать
- Объем бетона: 0,06 м3
- Геометрический объем: 0,1554 м3
Стандарт изготовления изделия: ТП 501-166
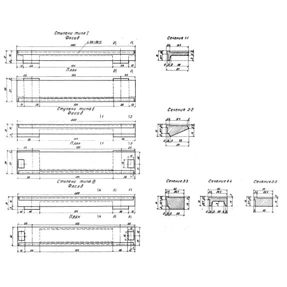
Ступени Ступень типа 1 (ТП 501-166) – прямоугольные железобетонные изделия. Характерной их особенностью является наличие выступов в нижней части, которые позволяют оборудовать скат для колясок и беспрепятственного заезда тележек. Рабочие чертежи представлены в нормативном документе ТП 501-166. Применяются при строительстве пешеходных мостов через железные дороги. Изделия данного вида, как правило, используются с косоурами и другими элементами лестниц. Железобетонные изделия производятся из прочных материалов, надежны и долговечны в эксплуатации, и довольно просты в установке, а также позволяют легко заменить в сооружении какие-либо лестничные элементы, которые требуют ремонта. Допускается эксплуатация ступеней в любых климатических районах, включая северные, но при производстве необходимо обязательно соблюдать все технические требования документа ТП 501-166.
Расшифровка маркировки
Каждое железобетонное изделие имеют определенную марку, которая позволяет легко ориентироваться в номенклатурном ряду и быстро найти нужную железобетонную продукцию. Символы состоят из цифр и букв. Нормативный документ ТП 501-166 содержит расшифровку марки Ступень типа 1 (ТП 501-166):
1. Тип 1 – вид конструкции - ступень железобетонная.
Маркировку наносят с помощью трафаретов черной несмываемой краской. Помимо марки указывают дату выпуска, номер партии, наименование завода-производителя, массу и должен стоять штамп ОТК.
Основные характеристики и изготовление
Процесс производства ступеней Ступень типа 1 (ТП 501-166) изложен в нормативном документе ТП 501-166. Они изготавливаются на оборудованных заводах, обязательно должен проводиться пооперационный контроль за качеством используемого сырья. Основой железобетонных изделий выступает тяжелый бетон марки М300 по прочности на сжатие. Морозостойкость запроектирована на уровне Мрз300. Водонепроницаемость назначается под каждый типовой проект индивидуально, исходя из климатических особенностей зоны эксплуатации. Высокая прочность железобетонных конструкций достигается за счет армирования каркасами и сетками. Они производятся из горячекатаной стержневой стали классов A-I, A-III. Все арматурные элементы соединяются при помощи контактной точечной сварки. Для удобства транспортировки и монтажа, в теле конструкций имеются строповочные петли, которые изготавливаются из гладкой стали класса A-I. Для сопряжения с другими элементами, имеются закладные детали. Петли и детали закладные привариваются к арматурным сеткам. Металлические элементы должны обрабатываться антикоррозийным раствором для увеличения срока эксплуатации по требованиям СНиП III-26-73. Важным этапом является контрольная проверка готовых изделий на качество, только после нее ступени можно отправлять заказчику вместе с необходимой документацией. Изделия с дефектами должны быть отправлены на ремонт.
Хранение и транспортировка
Хранение и транспортировка ступеней Ступень типа 1 (ТП 501-166) должны осуществляться в горизонтальном положении в штабелях. Маркировка каждого изделия должна быть хорошо видна, а между рядами обязательно следует прокладывать деревянные инвентарные подкладки, которые превышают по толщине высоту выступающих частей. Транспортируют конструкции как на автомобильном, так и на железнодорожным транспорте, при этом ступени должны быть надежно зафиксированы, во избежание смещений и повреждений. Погрузка и разгрузка осуществляется специализированной техникой. Подъём проводится за строповочные петли. Чтобы конструкции сохранили все свои высокие качественные показатели, следует соблюдать осторожность и технику безопасности.

